En Venta
Proyecto muy luminoso y con amplios ambientes Balcones aterrazados, jardin o terrazas propias todos con parrilla
Código: 90829

Enrique Martinez 876, Capital Federal, Capital Federal, Argentina.

USD1

Emprendimiento
Compartir esta Propiedad

Descripción de la Propiedad

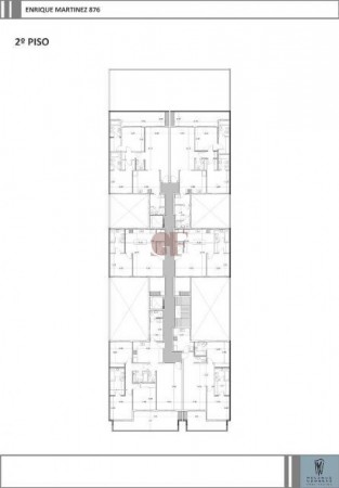
Este nuevo emprendimiento se desarrollará en un lote de doble frente, en el que se construirán 20
exclusivas unidades de 2, 3, 4 y 5 ambientes.
Los espacios descubiertos, amplios balcones, terrazas y jardines serán el complemento perfecto del ya clásico acento del estudio en las generosas medidas de los interiores; los que configurarán en su conjunto un lugar calmo y relajado para vivir, trabajar y disfrutar, en el corazón de la ciudad y el barrio con la sensación de estar en una casa de veraneo.

El proyecto logra combinar lo mejor de la naturaleza con lo esencial de la ciudad, por eso sus construcciones se levantan en barrios como Colegiales, uno de los que posee mejor calidad de vida de la Ciudad de Buenos Aires, además de ser aledaño a barrios como Palermo y Belgrano, y tener fácil acceso hacia cualquier otro punto de la ciudad.
Este innovador proyecto pretende entregar a sus habitantes espacios de calidad, a través de la utilización de materiales nobles en todas sus terminaciones.
El edificio contará con todas las comodidades que los tiempos modernos exigen, cocheras, bauleras y un amplio conjunto de amenities; salón de fiestas, soláriumy parrilla, piscina y seguridad.

Todas las unidades se entregarán listas para mudarse, con el cuidado en el detalle y la calidad de los materiales. Parrillas individuales en cada una de ellas, pisos de porcellanato, griferías de cierre cerámico, calefacción través de piso radiante (con caldera individual), persianas en todos los dormitorios e interiores y frentes de placard. La grifería y los artefactos a instalar tanto en baños como cocinas serán de primeras marcas.

El desarrollista otorga a los propietarios la posibilidad de personalizar las unidades a su gusto, para que cada ambiente esté hecho a medida y en sintonía con quien lo habite. Mediante un contacto estrecho y nuestro asesoramiento se podrán modificar las terminaciones interiores originales por aquellas que mejor se ajusten a la estética o las necesidades de sus dueños.

Ubicación:

Estratégicamente ubicado en el barrio de Colegiales, en el corazón de la capital federal; se desarrolla en un entorno consolidado, con una variada oferta que abarca tanto lo cultural, comercial, gastronómico, como lo educativo y de salud de primer nivel.
Un acceso inmejorable, ya que posee un sin fin de opciones de transporte público y también fácil acceso a importantes avenidas; lo que otorga una amplia variedad de opciones que le permiten a los residentes poder movilizarse durante todos los días y horarios a cualquier otra parte de la ciudad.

Opciones :

2 ambientes de 57 metros

3 ambientes de 87 y de 100 metros

3 ambientes c/ dependencia de 104 metros

3 ambientes en duplex con jardin de 114 metros + 30 de jardin

4 ambientes c/ dependencia de 126 metros

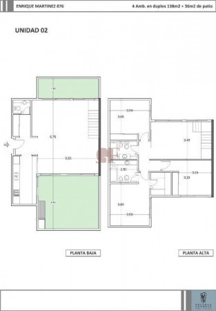
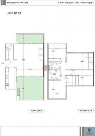
4 ambientes duplex con jardin de 138 mteros + 50 de jardin

4 ambientes con terraza de 138 metros + 57 de jardin

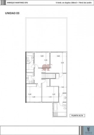
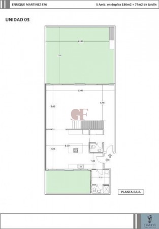
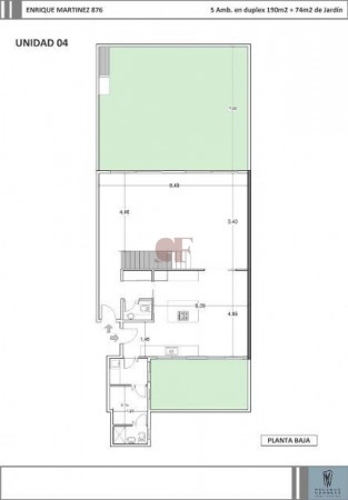
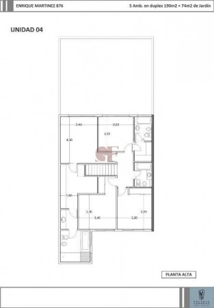
5 ambientes duplex con jardin de 190 metros + 74 metros de jardin

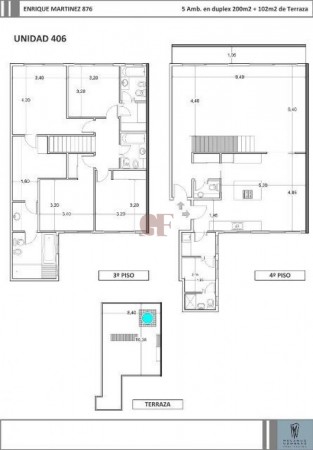
5 ambientes con terraza de 195 metros + 96 de terraza



Cocheras y bauleras opcionales, todas las unidades con terraza propia

Mas detalles
Expensas: $ 1
  • Aire acondicionado
  • Acepta mascotas
  • Pileta
  • Cochera subterránea
  • En construcción
  • Balcon
  • Calefacción
  • Parrilla
  • Portones eléctricos
  • Calefacción Central / Piso Radiante / Radiadores
  • Luminoso
  • Quincho
  • Apto profesional
  • Comedor
  • Solarium
  • Cochera
  • Servicios Compartidos
  • Agua Corriente
  • Cloacas
  • Electricidad
  • Red Gas Natural
  • Planos aprobados
  • Entrada para Auto
  • Cocina Amueblada
  • Medidor Eléctrico Individual
  • TV por cable
  • Internet / Wifi
  • Balcón terraza
  • Gimnasio
  • Hidromasajes
  • Ascensor
  • sum
  • Laundry
  • terraza con jardin